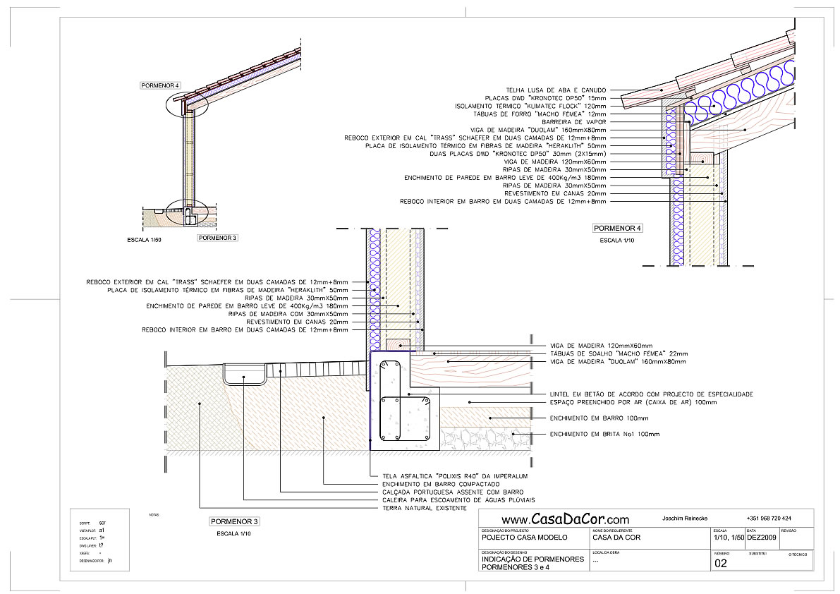
Fenster schließen       zur CasaDaCor-homepage      als pdf zum Ausdrucken downloaden